Plano de Casa de 3 dormitorios y 90 metros cuadrados.
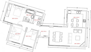
Me gusto la forma en que se distribuyo esta casa… de hecho intente hacer algún plano de este estilo, pero nunca me salio. La idea es tener dos espacios bien definidos. El area social, donde tendremos la cocina, el comedor y el living. Y en el area privada tenemos tres dormitorios y el baño. Lo que no me termina de gustar de este plano es la ubicación de la puerta de acceso.
Veamos el plano: tenemos la cocina, con una pequeña mesa dentro de ella, para usar al estilo de comedor diario o desayunador, la sala de estar, con espacio para 5 personas comodas y el comedor. Justo entre el area social y los dormitorios tenemos el recibidor. Y un poco mas halla tres dormitorios y dos baños (uno de ellos en suite).
Home
»
Casas o departamentos pequeños de 51m2 hasta 99m2
»
Plano de Casa de 3 dormitorios y 90 metros cuadrados

